CEI Pace Center Oakland
Location: Oakland, CA
Owner: Center For Elder’s Independence
Completion: December 2018
Center for Elders’ Independence is a non-profit organization serving seniors since 1992. They are a premier provider of The Program of All-inclusive Care for the Elderly (PACE), which is the nation’s only integrated acute and long-term care program for low income frail seniors.
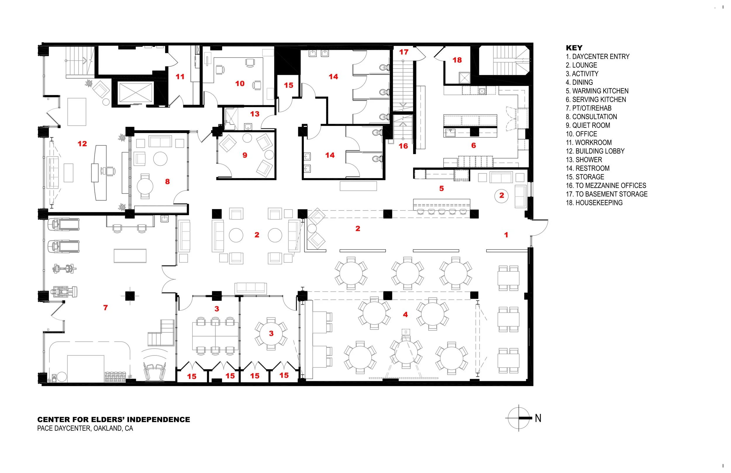
CEI decided to renovate the 7,233 sf ground floor of their administration building in downtown Oakland into a unique urban senior adult day activity center. Using the approach developed during the design of their San Leandro facility, we ensure the design respects participant’s dignity while providing enough stimulus and activities.
Formerly a nightclub and restaurant, the proposed day center takes advantage of the existing double height ceilings and exposed concrete structure. To bring daylight to the activity core, new windows are added at the rear of the building and the space is left primarily open using partial height walls to delineate the rooms. Dining and lounge areas flow into each other to allow for flexible use of space. Smaller activity rooms break off of the larger space to allow for more directed activities. Elements inspired by nature are incorporated into the interior design, including a live edge table, plant-embedded resin panels, and wood-like flooring for improved health and well-being of both participants and staff.
Photo Credits: Tubay Yabut Photography

