Casa Verde
Location: San Leandro, CA
Developer: Mercy Housing California
Owner: City Of San Leandro Housing Services Division
Completion: May 2008
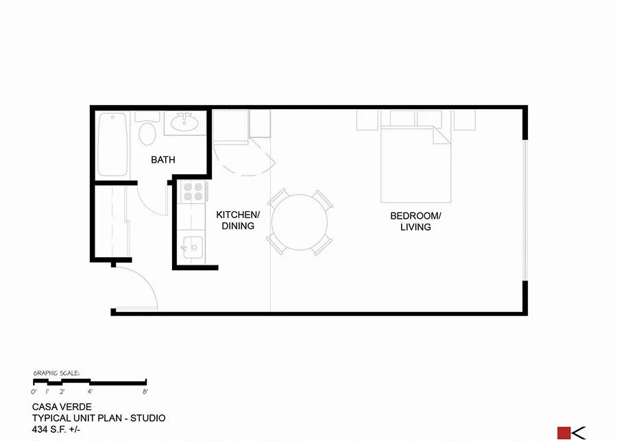
We worked with Mercy Housing California, a non-profit organization, and the City of San Leandro’s Housing Department to renovate a rundown four-story motel into 67 units of very low-income studio and single room occupancy housing.
Our design completely replaced the exterior cladding of the building, greatly improving the façade and providing a strong public front, and remodeled the interiors to adapt them to full-time residential use while adding in community and administrative spaces that did not exist in the original motel’s design. Many amenities are provided to the residents including a community technology room, laundry facilities, and an outdoor picnic area with built in seating surrounded by pine trees and other plantings. The design also includes office space and an apartment unit for Mercy Housing’s on-site residential services coordinator.
Photo Credits: Ethan Kaplan
Awards + Publications
The HayWord, July 28, “Celebration officially begins for Casa Verde,” Casa Verde, San Leandro, CA
Inside Bay Area, May 13, “Casa Verde opens in San Leandro,” Casa Verde, San Leandro, CA

